top of page
LA PORTE DE BERRIAT
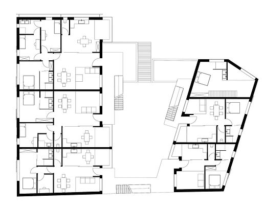
Housing conception and urban planning in Grenoble, France.
This project is located on a neighborhood’s doorway, in other words, a transition space from outside the area into it. The change of atmosphere is important for the individual well-being and his or her perception.
That’s why architecture becomes a way to accompany users. This space is a reference point in the city and enables the articulation between two areas.
This housings conception first started with the users analysis to identify their behavior and needs in their living space. This analysis enables the conception of different atmospheres in accordance with the uses.












bottom of page